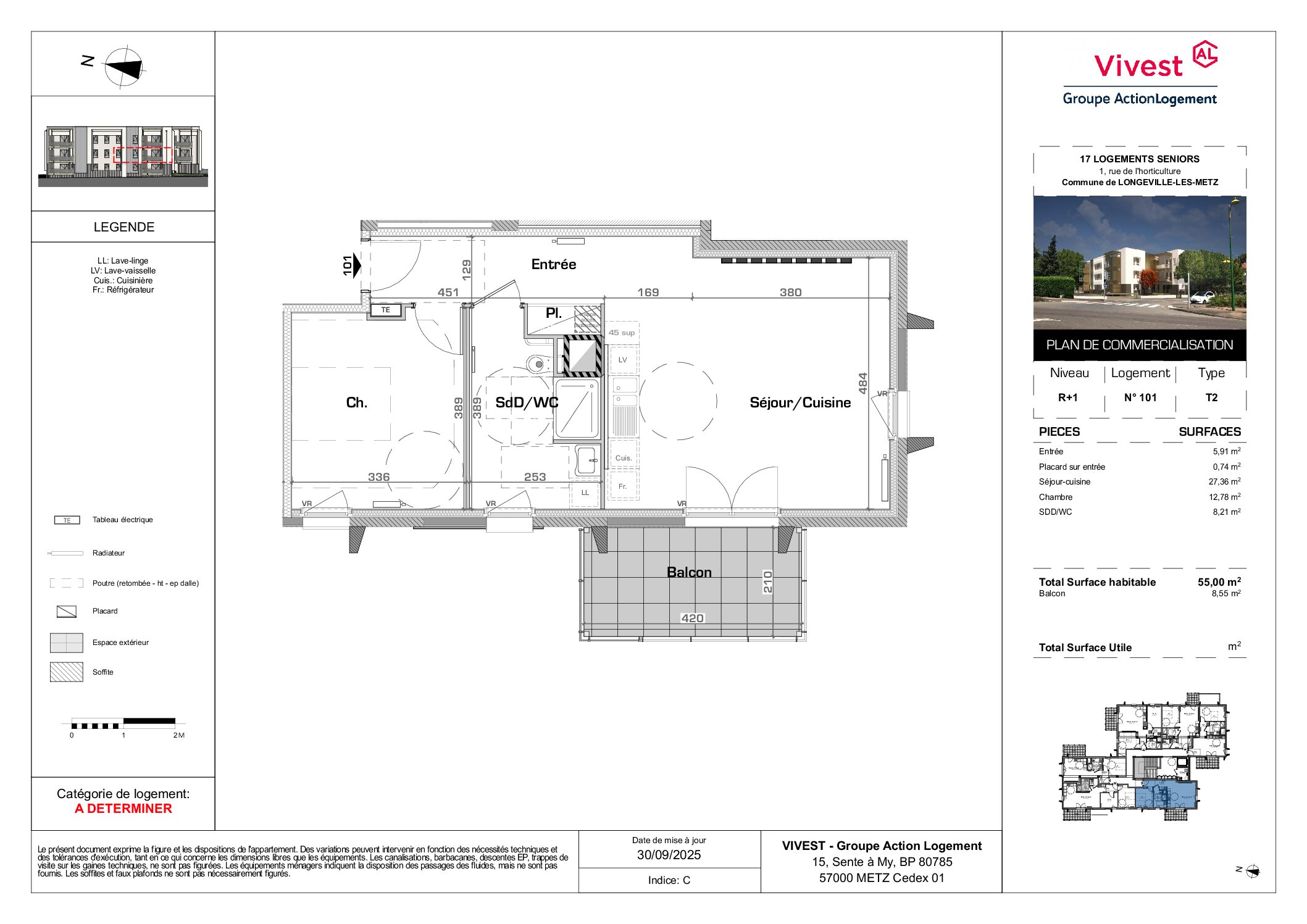
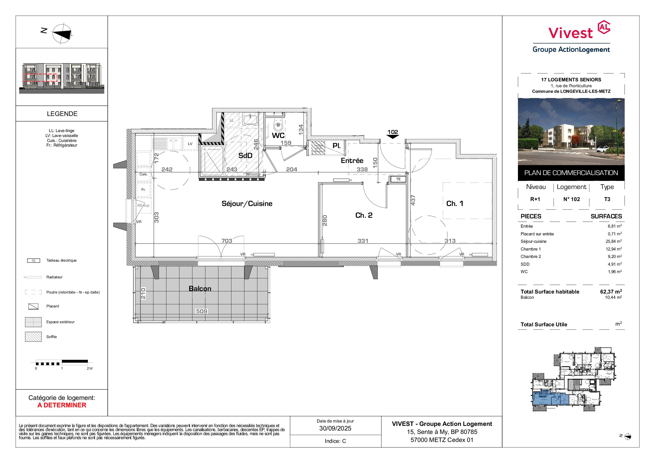
Située 1 rue de l’Horticulture à Longeville-lès-Metz, la Résidence de L’Horticulture propose 17 appartements rénovés, du T2 au T4, dans un cadre paisible et verdoyant 🌿.
Conçue pour offrir confort et qualité de vie, la résidence bénéficie du label NF Habitat / BBC Rénovation, garantissant des logements performants, économes en énergie et durables 🔋.
Chaque appartement dispose d’un chauffage individuel au gaz, d’une ventilation hygroréglable et d’une isolation renforcée pour un confort optimal été comme hiver 🌞❄️.
La résidence comprend également :
-
🚗 19 places de stationnement (dont 2 visiteurs) avec accès sécurisé par barrière automatique,
-
🏢 Ascenseur OTIS desservant l’ensemble des niveaux,
-
🧺 Locaux poubelles et local poussette pratiques au rez-de-chaussée,
-
🌳 Espaces verts communs et cheminements piétons aménagés pour un cadre de vie agréable.
Idéalement située, la résidence profite d’un environnement résidentiel calme, à proximité immédiate du centre-ville de Metz, des commerces et des transports 🚉.
👉 Découvrez un lieu de vie moderne, confortable et durable au cœur de Longeville-lès-Metz.
Le programme Caractéristiques détaillées
Gaz
Individuel


